Home > Buy > Upper Morannedd, Criccieth
Upper Morannedd, Criccieth
£325,000
For Sale | 3 | 2
Key Features
- Fantastic property enjoying far reaching sea & mountain views
- Currently registered as a second home, although would make lovely primary residence
- Excellent outdoor space including a balcony and rear gardens
- Three Bedrooms
- Kitchen/Diner
- Off road parking
Property Description
Tom Parry & Co are delighted to offer for sale this fantastic first floor flat, situated on the much sought after residential road of Upper Morannedd. Currently used as a second home, offering a perfect retreat for family and friends. This versatile space offers the option of continuing with the current use or permanent occupation.
One of the standout features of this home is the breath-taking views of the sea, mountains and the historic castle, which can be enjoyed from various vantage points throughout the property. The picturesque surroundings of Criccieth, with its stunning coastline and rich history, further enhance the allure of this residence.
The flat is accessed via external steps to a large balcony at the side of the house, into a generous kitchen with dining area. The large balcony extends to meet the rear garden, an unusual feature for a first floor flat, and is perfect for al fresco dining and enjoying the spectacular views. The living room has the benefit of a juliette balcony to enjoy the views and the three double bedrooms, one of which is en-suite make the generous space perfect families and guests alike.
Whether you are looking for a family home or a holiday retreat, this property in Upper Morannedd is sure to impress. With its beautiful views and prime location, it is a rare find in the market. Do not miss the chance to make this exceptional flat your own.
Our Ref: C413
ACCOMMODATION
All measurements are approximate
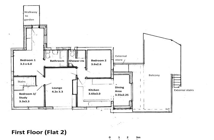
FIRST FLOOR
Kitchen/Dining Area
with main entrance to the flat via 'French' doors opening onto balcony; range of fitted wall and base units with worktop over; range of integrated appliances including double oven, induction hob with extractor over; dishwasher and fridge freezer; two windows to the front enjoying sea and mountain views; wall mounted 'Worcester' boiler, dining area; cloak hanging space; laminate flooring and two radiators including tall modern unit
3.041 x 6.025
9'11" x 19'9"
Inner Hallway
with loft access & skylight
Living Room
with large sliding patio door opening to Juliette balcony at front and enjoying far reaching sea, mountain and Castle views; inset real flame effect gas fire; tall modern radiator and carpet flooring
4.208 x 3.275
13'9" x 10'8"
Bedroom 2
with carpet flooring and radiator
2.632 x 3.41
8'7" x 11'2"
Shower Room
with fitted shower cubicle; low level WC and corner wash basin in vanity; tiled floor and radiator
Landing
with staircase to ground floor and loft access
Bedroom 1
with built in wardrobes with space and plumbing for a washing machine within; dual aspect windows; door that leads directly to garden; carpet flooring and radiator
5.096 x 3.306 overall
16'8" x 10'10" overall
En-Suite
with 'P' shaped bath with shower over; WC and wash basin set in vanity with built in storage; tiled floor and radiator
Bedroom 3
with sea views to front; carpet flooring and radiator
3.349 x 2.325
10'11" x 7'7"
GROUND FLOOR
Hallway
with entrance door (no longer used as the main entrance access); staircase to first floor; under stair storage area; radiator and cloak storage. The space is currently connected by a door to the ground floor flat, but this will be permanently locked.
EXTERNALLY
The property is accessed via a private drive to the front of the house It is envisaged that two parking spaces and the use of the car port will be included within the boundaries of this flat. The steps to the side of the car port, form the main entrance to the flat across the balcony. This fantastic balcony area, which extends to and gives level access to the rear garden, is perfect for al fresco dining and enjoying the spectacular views. At the rear there is a lawned garden with a range of mature trees, shrubs and plants for exclusive use by this flat.
SERVICES
All mains services
MATERIAL INFORMATION
Tenure: It is envisaged that if the flats are sold separately this would be done on a 999 year leasehold with share of freehold basis. At the time of sale the staircase between the two flats would remain, though access would be restricted to the owner of the upper flat only, with the connecting door being permanently locked. There would be potential to agree for the removal of the staircase at a later date between the two new owners, to increase the floor space of each of the flats.
Council Tax: Band C - currently a second home.
Note that the flats are also being advertised as a whole building.






















