Home > Buy > Tremadog, Porthmadog
Key Features
- Land with planning permission & services in place
- No occupancy restrictions
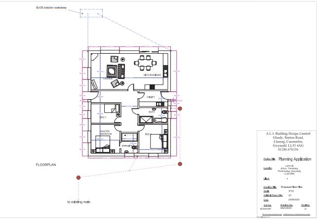
- Three bedroom bungalow permitted
- Detached garage in situ
- Situated in an elevated position within walking distance of the village
Property Description
Tom Parry & Co are delighted to offer for sale this Building Plot with planning permission for the erection of a detached three bedroomed bungalow. Located a short walk from the centre of Tremadog's village, it is situated in an elevated position with approx. 1/4 of an acre.
The planning permission, reference C20/0683/44/LL can be viewed on the Gwynedd Council Planning Portal but offers spacious living accommodation on a building plot with services already installed and a detached garage already constructed. Planning permission was previously granted for a detached three bedroomed house, though this has since lapsed. There may be potential therefore to alter the plans to suit your requirements, subject to the requisite statutory consents.
There are no local occupancy or affordability clauses enforced by the council on this plot.








